Продажа дома, село Ниновка

6 100 000
Сегодня, 20:32
  • Сегодня, 20:32
1 / 17
Адрес Новооскольский район, село Ниновка, Лесная
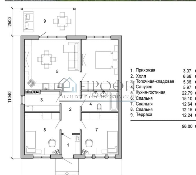
Площадь 90 кв.м.
Площадь земли 15 сот.
Строение 1-этажный Дом
Материал стен Пеноблок
Крыша Металлочерепица
Фундамент сплошной
Вода скважина
Канализация Автономная
Отопление Индивидуальное

НОВЫЙ ДОМ ПОД ЧИСТОВУЮ ОТДЕЛКУ. CЕЛЬСКАЯ ИПОТЕКА 3%!!!   ЗЕМЛЯ В СОБСТВЕННОСТИ.   
  Предлагаем к продаже дом   в активно развивающемся районе с уже сформированной социальной и транспортной инфраструктурой, что гарантирует перспективу роста его рыночной стоимости. Дом общей площадью 90кв.м на участке 15соток, возведен из пеноблоков с кирпичной облицовкой и завершен кровлей из металлочерепицы, что обеспечивает высокую энергоэффективность и минимальные будущие расходы на отопление. Установлены современные   панорамные окна - тройной стеклопакет, электричество, газопровод на участке, водоснабжение и канализация — подведены к участку и введены в дом; выполнена полная внутренняя разводка электричества. Планировка продумана для комфортного проживания: просторная кухня-гостиная с прямым выходом на собственную террасу, три изолированные комнаты, совмещенный санузел и функциональное помещение, которое можно использовать как котельную или гардеробную. Стены готовы к финишной шпатлевке и оклейке обоев, потолок утеплен и   подшит USB-панелями, по всему дому смонтирована система теплый пол и   отопление.   Участок находится в зоне активной застройки, где продолжается развитие дорожной сети и социальных объектов. Район обладает всей необходимой повседневной инфраструктурой — магазины, образовательные и медицинские учреждения находятся в шаговой доступности, обеспечена удобная транспортная связность с центром города. Это рациональное решение для создания семейного гнезда с использованием выгодных условий кредитования, позволяющих значительно снизить финансовую нагрузку.  Звоните, расскажу подробности, устрою показ в удобное для вас время!

Рыбакова Татьяна Александровна
proffi31@mail.ru
Агентство недвижимости: Профи
proffi31@mail.ru
Все предложения этого агентства